Skip to main content

North Woods Phase 10 Arriving 2027

Mintlaw

Strathbeg

£

  • 136m² Living Area
  • 4 Bedrooms
  • Single Garage
  • Optional Sun-lounge

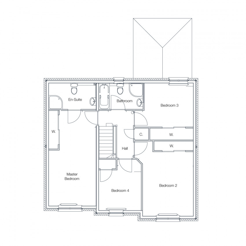
An extensive four bedroom detached family home.

With an open-plan kitchen/dining room and the option to add a sun-lounge leading to a private rear garden, the Strathbeg offers fantastic open-plan living space. Upstairs four generous double bedrooms come with fully-fitted wardrobes. There’s a family bathroom, of course, plus an en-suite to the master bedroom. The interior of this home is finished throughout in white MDF and fitted with high-quality, low-energy UPVC double-glazed windows as standard. And naturally, every one of our houses comes with a ten-year warranty.

House Plans

Finishing Allowance

  • Interior Finishes

    Interior Finishes as standard

    All walls will be finished in your choice of either Classic White or Natural Hessian. There will be ample power points in each room, and you can sit down with our designers and decide exactly where you want your sockets, radiators and TV/satellite points. Central ceiling light pendants come standard in all rooms, with the option to upgrade to LED spotlighting.

  • Strathbeg Bathroom/Ensuite £2,500

    Stylish designer bathrooms

    For your family bathroom, en-suites and cloakroom, choose from our stylish contemporary range of designs, colourways and fittings. There’s also a great selection of wall tiles and fashionable wetwall. The price you pay for your new home includes an allowance towards your bathroom, and you can add to this if you want to upgrade.

  • Strathbeg Kitchen/Utility £9,000

    Modern fitted kitchens

    We want this to be your kitchen - that’s why we give you a choice of quality German and British-made designs. Discuss your requirements with our designer, and we’ll help you  choose from the variety of cabinets, worktops, appliances and lighting on offer. The price you pay for your new home includes an allowance towards your kitchen, and you can add to this if you want to upgrade. Utility rooms can be fitted out to match your kitchen design.

  • Windows & Doors

    High-performance windows and doors as standard

    Double-glazed windows are fitted as standard throughout all Colaren property. Windows are high-performance, low-energy UPVC matching the style of each home complimented by external high-performance composite doors with feature haze glass. All doors feature modern, chrome-finish ironmongery.

Customer Service