Skip to main content

Crichie Meadows - Phase 6 Arriving 2027

Stuartfield

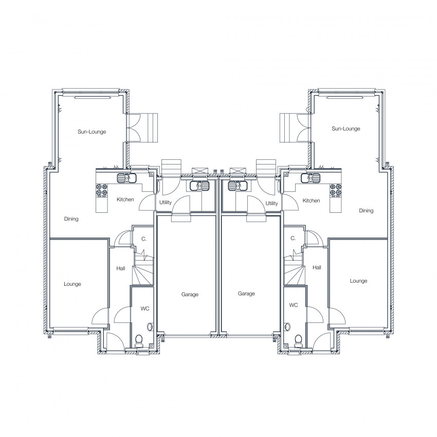
Brucklay Semi SG

£229,995

  • 99m² Living Area
  • 3 Bedrooms
  • Single Garage
  • Optional Sun-lounge

A practical and stylish three bedroom semi-detached house with integral garage.

A family home with three double bedrooms on the first floor, plus a large family bathroom, the Brucklay provides terrific, practical space. Downstairs there’s a modern open-plan kitchen/dining room while a convenient utility room connects the kitchen with the integral garage. There’s also a large family room downstairs. Each living space is also kept naturally warm through a renewable energy heating system. As standard, this homes’ interior is finished throughout in white MDF and fitted with high-quality, low-energy UPVC double-glazed windows. And naturally, every one of our houses comes with a ten-year warranty. 

House Plans

Finishing Allowance

  • Brucklay Semi SG Bathroom/WC £1,600

    Stylish designer bathrooms

    For your family bathroom, en-suites and cloakroom, choose from our stylish contemporary range of designs, colourways and fittings. There’s also a great selection of wall tiles and fashionable wetwall. The price you pay for your new home includes an allowance towards your bathroom, and you can add to this if you want to upgrade.

  • Brucklay Semi SG Kitchen/Utility £8,000

    Modern fitted kitchens

    We want this to be your kitchen - that’s why we give you a choice of quality German and British-made designs. Discuss your requirements with our designer, and we’ll help you  choose from the variety of cabinets, worktops, appliances and lighting on offer. The price you pay for your new home includes an allowance towards your kitchen, and you can add to this if you want to upgrade. Utility rooms can be fitted out to match your kitchen design.

  • Interior Finishes

    Interior Finishes as standard

    All walls will be finished in your choice of either Classic White or Natural Hessian. There will be ample power points in each room, and you can sit down with our designers and decide exactly where you want your sockets, radiators and TV/satellite points. Central ceiling light pendants come standard in all rooms, with the option to upgrade to LED spotlighting.

  • Windows & Doors

    High-performance windows and doors as standard

    Double-glazed windows are fitted as standard throughout all Colaren property. Windows are high-performance, low-energy UPVC matching the style of each home complimented by external high-performance composite doors with feature haze glass. All doors feature modern, chrome-finish ironmongery.

Customer Service